Offers Over £650,000 - Available


  • Recently Renovated
  • Extended 6 Bedroom Property
  • 2 Master Beds With Ensuite
  • Large Secure Gated Driveway
  • Large Front Garden With Open Views
  • EPC RATING - D
  • Unique Opportunity
  • Impressive Kitchen/Family Room With Utility
  • Detached Single Garage
  • Viewings Are Highly Recommended

A rare opportunity to purchase such an impressive, high quality versatile property offering up to,six double bedrooms, in addition to a large family room, which combines kitchen, dining and living facilities. The property CURRENTLY IN FINAL STAGES OF RENOVATION FOR EARLY 2026 COMPLETION offers the potential for buyers to have some input on final finishes dependent on stage. The property offers a further four rooms downstairs as well as a en-suite master and family bathroom whilst to the first floor is a generous double bedroom with en-suite facilities. With modern refurbishment throughout, this property is a perfect family home offering contemporary living accommodation. Situated in a sought after residential area,the property is within easy access of excellent local schools and amenities. The property further benefits from ample off-road parking to the rear and a single datached garage and boasts a generous front garden, with open aspects beyond. To appreciate the scale and quality of this substantial property, viewings are highly recommended.

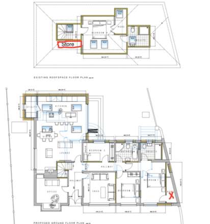
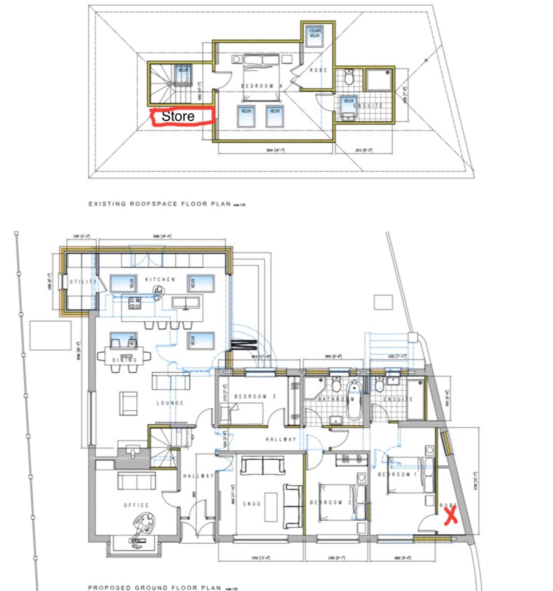
INTERNAL ACCOMMODATION

ENTRANCE HALL

FAMILY ROOM - 18'1" (5.51m) x 16'5" (5m)
A generous family room with aluminium sliding door and UPVC patio to both
outdoor spaces finished with two large velux in the vaulted ceiling. This huge space offers kitchen, dining and living facilities to be fitted with a full wall of extra tall back wall units providing additional storage along with a huge breakfast bar that sits 5 people. The vendors have confirmed an integrated fridge freezer along with dishwasher, double oven, integrated microwave and extractor hob will be fitted. Units dark Charcoal. Entrance to utility room with washing facilities.

UTILITY/LAURNDRY
Fitted with window, spotlight ceiling and laundry facilities.

OFFICE/BEDROOM 5 - 12'6" (3.81m) x 12'6" (3.81m)
Bay window with karndean flooring. Fitted with black Venetians blinds and
black iron radiator. Pendant light.

BEDROOM 1/MASTER - 15'9" (4.8m) x 10'6" (3.2m)
Lower ground king size bedroom fitted with black Venetian blind and black iron
radiator. Inset spotlights. Entrance to ensuite shower room. Front outlook.

ENSUITE - 9'2" (2.79m) x 9'2" (2.79m)
Fully tiled walls with large walk in shower, vanity unit and WC. Radiator and tiled floor with inset spotlights. Frosted double glazed window to rear.

BEDROOM 2 - 12'6" (3.81m) x 9'4" (2.84m)
Double bedroom with black iron radiator and black Venetian blinds. Front outlook with
pendant lighting.

BEDROOM 3 - 11'6" (3.51m) x 9'2" (2.79m)
Double bedroom with rear outlook black iron radiator and pendant lighting.

SNUG/BEDROOM 6 - 12'6" (3.81m) x 12'6" (3.81m)
Double bedroom with pendant lighting, black iron radiator and black venetian blind.
Front outlook.

FAMILY BATHROOM - 9'2" (2.79m) x 9'2" (2.79m)
Part tiled to be fitted with free standing bath, vanity unit and WC. Spotlight
ceiling. Frosted double glazed window to rear.

FIRST FLOOR

MASTER BEDROOM 4 - 16'5" (5m) x 13'1" (3.99m)
Double bedroom with two velux windows onto open views. Spotlight ceiling
along with walk in wardrobe or office space. There is a further storage/wardrobe space on the landing with pocket door. Black oak doors and black iron radiator. Entrance to ensuite.


ENSUITE - 10'2" (3.1m) x 10'2" (3.1m)
Vanity sink unit and WC, walk in shower, tiled walls and floor, towel radiator, inset spotlights and UPVC double glazed window.

OUTSIDE
The property further benefits from ample off-road parking to the rear and boasts a generous front garden, with open aspects beyond

NOTE
Various rooms are still in the renovation stage. Most flooring will be installed at final stage to ensure cleanliness during building work.

Garage - 18'1" (5.51m) x 8'2" (2.49m)



Council Tax
Oldham Metropolitan Borough Council, Band D

Notice
Please note we have not tested any apparatus, fixtures, fittings, or services. Interested parties must undertake their own investigation into the working order of these items. All measurements are approximate and photographs provided for guidance only.

Floor Plan
EER Chart

The Energy-Efficiency Rating is a measure of a home's overall efficiency. The higher the rating, the more energy-efficient the home is, and the lower the fuel bills are likely to be.

Utility Supply Type
Electric Unknown
Gas Unknown
Water Unknown
Sewerage Unknown
Broadband Unknown
Telephone Unknown

Other Items Description
Heating Not Specified
Garden/Outside Space No
Parking Yes
Garage Yes

Broadband Coverage Highest Available Download Speed Highest Available Upload Speed
Standard 4 Mbps 0.6 Mbps
Superfast 80 Mbps 20 Mbps
Ultrafast 1800 Mbps 220 Mbps

Mobile Coverage Indoor Voice Indoor Data Outdoor Voice Outdoor Data
EE Likely Likely Enhanced Enhanced
Three Likely Likely Enhanced Enhanced
O2 Likely Likely Enhanced Enhanced
Vodafone Likely Likely Enhanced Enhanced

Broadband and Mobile coverage information supplied by Ofcom.


marker icon