Price £199,950 - Sold STC


  • Mid Terrace Property
  • Three Bedrooms
  • Lounge
  • Modern Fitted Dining Room
  • Family Bathroom
  • Master Bedroom With Walk In Wardrobe
  • Enclosed Rear Garden
  • Well Presented Throughout
  • Popular Residential Area
  • Viewings Are Highly Recommended

Alan Ryan Estates, are pleased to bring to market this stunning, three bedroom, mid terrace property which has been tastefully decorated throughout and is an ideal starter home or potential investment property. The property offers generous size living accommodation in the form of lounge, modern fitted dining kitchen, three bedrooms and modern family bathroom. Externally to the front of the property is a well presented forecourt garden, whilst to the rear of the property is a generous sized low maintenance garden with wooden garden shed and gated rear access.The property further benefits for UPVC double glazing an gas central heating and viewing the property is highly recommended.

INTERNAL ACCOMMODATION

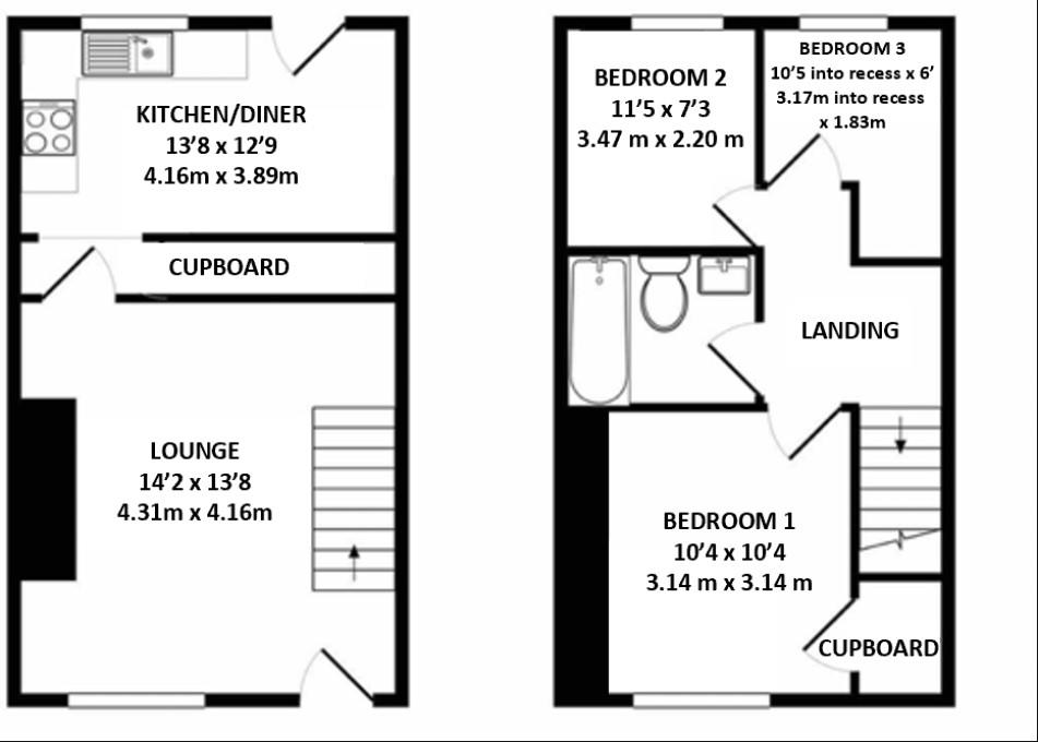
LOUNGE - 14'1" (4.29m) x 13'11" (4.24m)
Via a composite double glazed entrance door, stairs leading to first floor, feature Inglenook fireplace and UPVC double glazed window.

DINING KITCHEN - 14'1" (4.29m) x 13'11" (4.24m)
A range of wall and base units, four ring gas hob with extractor hob above one and a half bowl stainless steel sink unit with mixer tap, plumbed for washing machine and dishwasher, radiator, laminate flooring, under stairs storage cupboard, UPVC double glazed window and UPVC double glazed composite door leading to rear garden.

LANDING
With loft access hatch with loft ladders leading to a fully boarded loft.

BEDROOM ONE - 10'6" (3.2m) x 10'6" (3.2m)
A front double bedroom with walk in wardrobe, radiator and UPVC double glazed window.

BEDROOM TWO - 11'6" (3.51m) x 7'10" (2.39m)
A rear double bedroom with UPVC double glazed window.

BEDROOM THREE - 8'2" (2.49m) x 6'1" (1.85m)
A rear single bedroom with radiator and UPVC double glazed window.

BATHROOM
A modern bathroom suite comprising of overhead range shower, vanity sink unit and WC and towel radiator.

OUTSIDE
Externally to the front of the property is a well presented forecourt garden, whilst to the rear of the property is a generous sized low maintenance garden with wooden garden shed, double socket plug for power and gated rear access.



Council Tax
Oldham Metropolitan Borough Council, Band A

Notice
Please note we have not tested any apparatus, fixtures, fittings, or services. Interested parties must undertake their own investigation into the working order of these items. All measurements are approximate and photographs provided for guidance only.

Floor Plan
EER Chart

The Energy-Efficiency Rating is a measure of a home's overall efficiency. The higher the rating, the more energy-efficient the home is, and the lower the fuel bills are likely to be.

Utility Supply Type
Electric Unknown
Gas Unknown
Water Unknown
Sewerage Unknown
Broadband Unknown
Telephone Unknown

Other Items Description
Heating Not Specified
Garden/Outside Space No
Parking No
Garage No

Broadband Coverage Highest Available Download Speed Highest Available Upload Speed
Standard 3 Mbps 0.4 Mbps
Superfast 77 Mbps 20 Mbps
Ultrafast 1800 Mbps 220 Mbps

Mobile Coverage Indoor Voice Indoor Data Outdoor Voice Outdoor Data
EE Likely Likely Enhanced Enhanced
Three Likely Likely Enhanced Enhanced
O2 Enhanced Likely Enhanced Enhanced
Vodafone Likely Likely Enhanced Enhanced

Broadband and Mobile coverage information supplied by Ofcom.


marker icon